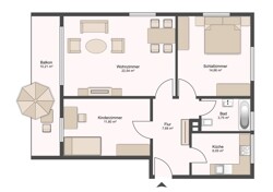
3 Zimmer Wohnung mit Balkon und Garage
Beschreibung:
Diese helle und freundliche 3-Zimmer-Wohnung befindet sich im Erdgeschoss eines gepflegten Mehrfamilienhauses aus dem Jahr 1964. Die Wohnung überzeugt durch ihre durchdachte Raumaufteilung, helle Wohnräume und einen Grundriss, der sowohl Singles und Paare als auch kleine Familien anspricht.Die Wohnung verfügt über insgesamt 3 Zimmer, davon 2 gemütliche Schlafzimmer. Das stilvoll gestaltete Badezimmer ergänzt das Angebot und lässt keine Wünsche offen.
Das Herzstück der Wohnung bildet das großzügige Wohnzimmer mit Zugang zum Süd-Balkon. Die Balkonbrüstung hat nur wenig Verschattung und eignet sich für ein Balkonkraftwerk.
Das Tageslichtbad ist zeitlos gefliest und verfügt über eine Badewanne mit Duschtrennwand, ein Waschbecken und ein WC.
Diese Wohnung ist sowohl für Eigennutzer als auch Kapitalanleger bestens geeignet.
Sie wäre für 1.050 € Kaltmiete vermietbar.
Das monatliche Hausgeld beträgt nur 182€ (inkl. 66€ Rücklagen).
Die Wohnung wurde 2025 umfassend modernisiert und ist bereit zum Neubezug.
Für die Einbauküche liegt eine Küchenplanung in zwei Varianten vor. Die Waschmaschine kann in der Küchenzeile untergebracht werden.
Die Einzelgarage (separates Grundbuch) kann zusätzlich zum Preis von 21.000 € erworben werden.
(Die Wohnung kann auch ohne Garage erworben werden)
Die Installation einer Elektroladestation ist möglich.
Optional kann eine zweite Garage im Gebäude zusätzlich erworben werden.
Zur Wohnung gehört ein eigener Kellerraum.
Im Keller gibt es eine gemeinschaftliche Waschküche und einen Fahrradraum.
Energieausweis:
VA, 96 kWh/(m² *a), Erdgas, BJ 1963, Gültig bis 04.06.2029
Lagebeschreibung:
Die Wohnung befindet sich in einer ruhigen, gut erschlossenen Wohngegend von Waiblingen. Einkaufsmöglichkeiten, Cafés und Restaurants sind fußläufig erreichbar. Schulen, Kindergärten und eine Vielzahl von Freizeit- bzw. Naherholungsmöglichkeiten befinden sich in der direkten Umgebung. Die Anbindung an den ÖPNV ist optimal: Buslinien befinden sich in unmittelbarer Nähe, eine kurze Fahrzeit von 7 Minuten sind es bis zum Bahnhof, von dort aus bestehen gute Verbindungen in umliegende Städte.Für Familien mit Kindern gibt es in fußläufiger Entfernung den Kindergarten Pusteblume, der eine ideale Betreuungsmöglichkeit bietet. Ebenso ist der Mia Stihl Kindergarten schnell zu erreichen. Die Nähe zu Bildungseinrichtungen macht Waiblingen zu einem attraktiven Ort für junge Familien.
In der Nähe finden sich außerdem Grünflächen und Erholungsbereiche, ideal für Spaziergänge und Outdoor-Aktivitäten, die umliegenden Wohngebiete zeichnen sich durch eine ruhige, familienfreundliche Atmosphäre aus.
Ausstattung:
Energieausweis:
- A+
- A
- B
- C
- D
- E
- F
- G
- H
- Baujahr (Haus):
- 1964
- Energy consumption:
- 96 kWh/(m²a)
- Energy certificate:
- Energy consumption data
- Energy efficiency class:
- C
- Energy certificate valid until:
- 04.06.2029
- Main energy source:
- Light Natural Gas Liquid
- Heating type:
- Electric storage heating
- Baujahr (Haus) Energieausweis:
- 1963
Ausstattungsbeschreibung:
Kunststofffenster, 2-fach verglast, abschließbar und mit erhöhtem Einbruchschutz, BJ 2000Modernisierungen in 2025:
- Wasserleitungen
- Elektrik, inkl. neuer Schalterserie
- Elektroboiler
- Innentüren
- Eingangstür mit Luftstopper
- Türsprechstelle
- Wände und Decken in Raufaser
- Bodenbeläge in Echtholzparkett
- Fliesen in Bad und Küche
- neues Bad mit Badewanne
- Bodenbelag Balkon aus WPC
- Rauchmelder
- neue Heizkörper
Die Heizkörper der Marke Aeroflow sind 'Made in Germany' und bieten eine smarte Steuerung per Handy-App. Sie bieten eine Kombination aus Infrarotheizung und Teilspeicherheizung. Die Heizung ist kombinierbar mit einer PV-Anlage oder einem Balkonkraftwerk.
Ein Gasanschluss ist im Haus vorhanden, wurde aber für diese Wohnung stillgelegt.
Für Telefon/Fernsehen/Internet steht ein Kabelanschluss mit 1,000Mbit zur Verfügung.
Sonstige Angaben:
Eine Besichtigung ist nach Absprache in unserer Begleitung möglich. Alle genannten Angaben zum Objekt beruhen auf den Angaben des Eigentümers, für deren Richtigkeit wir keine Gewähr übernehmen können. Bei Abschluss eines Kaufvertrags wird eine Provision in Höhe von 4,76 % inkl. 19 % gesetzlicher MwSt. an uns fällig.Sie wollen mehr erfahren?
Wenn Sie uns eine Nachricht über das Kontaktformular senden, melden wir uns schnellstmöglich bei Ihnen:











