Semi-detached - Purchase - Stuttgart

Einfamilienhaus/Doppelhaushälfte in ruhiger Lage

590.000 €
Stuttgart
Type of property
House
Kind of property
Semi-detached
Type of commercialization
Purchase
Postcode
70437
City
Stuttgart
Number of rooms
4
Number of bathrooms
2
Anzahl separates WC
1
Living area
100 sqm
Plot surface area
410 sqm
Number of floors
2
Heating type
Central heating system

Beschreibung:

Zum Verkauf steht ein Wohnhaus (Doppelhaushälfte), vermutlich aus dem Baujahr 1938.

Das Haus ist geräumt und sofort frei.

Rechteckig geschnittenes ebenes Grundstück, Grundstücksgröße 410 m².

Angaben aus dem Bebauungsplan: Art der Baulichen Nutzung Baustaffel 10, Wohngebiet, Grundflächenzahl 0,20

UG:
Das Untergeschoss ist ausgebaut. Ehemaliger Hobbyraum ca. 19 m² als Wellnessbereich mit Duschbad umgebaut, weiterer Raum 10 m² ebenfalls wohnraumartig ausgebaut, Flurbereich ca. 7 m².
Nutzfläche UG insgesamt ca. 36 m²


EG:
Eingangsbereich Diele ca. 6 m², WC separat ca. 1 m², offener Wohn-/Essbereich mit Küchenanschlüssen (Küchenzeile) ca. 50 m², Zugang auf die Terrasse und in den Garten mit ehemaligem Teichbereich, Terrassenfläche ca. 24 m².

Durch eine Verbindungstür geht es in den Anbau. Badezimmer mit Badewanne ca. 3 m², Hobbyraum ca. 16 m² Nutzfläche insgesamt ca. 19 m².

Terrassenfläche vor dem Hobbyraum ca. 11 m², zusätzliche Terrassenfläche vor dem Haus ca. 9 m². Die ausgebaute Fläche im Anbau ist nicht als Wohnfläche genehmigt.
Wohnfläche EG insgesamt ca. 69 m², Nutzfläche Anbau insgesamt 19 m².

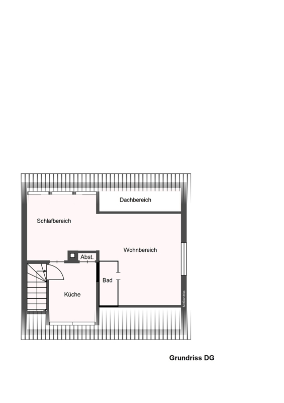
DG:
Küchenraum ca. 6 m², Wohnbereich ca. 13 m², Bad ca. 2 m², Schlafbereich ca. 10 m²
Wohnfläche DG insgesamt ca. 31 m²

Spitzboden:
ca. 15 m² Grundfläche, Stauraum

Angaben zum Energieausweis: Gültig bis: 16.02.2035
BA, 229 kWh/(m²*a), Gas, Bj. 1938, G, 57 kg CO2-Äquivalent/(m²*a), Baujahr Wärmeerzeuger 2005.

Lagebeschreibung:

Zuffenhausen zählt zu den größten Stadtbezirken im Norden von Stuttgart. Das Haus liegt in einem reinen Wohnviertel in einer ruhigen Seitenstraße. Über die nicht weit entfernte Bundesstraße B 27 ist Stuttgart gut zu erreichen und macht die Stadt auch für die Wirtschaft attraktiv. Der Wirtschaftsstandort Zuffenhausen ist durch eine ausgewogene Mischung mittelständischer Betriebe zahlreicher Sparten geprägt, die ein breites und qualitativ hochwertiges Angebot an Arbeitsplätzen bieten. Auch Weltkonzerne wie Porsche haben sich hier niedergelassen. Gute Einkaufsmöglichkeiten bieten sich im nahegelegen den Zentrum. Nicht weit ist ein großer Park und ein Hallenbad. Eine Schule befindet sich in der Nähe.

Ausstattung:

Energieausweis:

  • A+
  • A
  • B
  • C
  • D
  • E
  • F
  • G
  • H
0
30
50
75
100
130
160
200
250
>250
Baujahr (Haus):
1938
Final energy demand:
229 kWh/(m²a)
Energy certificate:
Requirement-oriented certificate
Energy efficiency class:
G
Energy certificate valid until:
16.02.2035
Main energy source:
Gas
Heating type:
Central heating system
Baujahr (Haus) Energieausweis:
1938

Ausstattungsbeschreibung:

Heizung: Gas-/Zentralheizung mit zentraler Wasserbeheizung aus dem Jahr 2005 (der Gasanschluss im Haus ist stillgelegt).

Sanitärausstattung: Im UG innenliegendes Bad mit Dusche und Waschbecken, im EG WC-Raum mit Fenster (derzeit als Waschmaschinenraum genutzt). Im Anbau befindet sich ein innenliegendes Bad mit Badewanne, Wachbecken und WC, im DG ein Tageslicht-Bad mit Dusche, Waschbecken und WC.

Die Elektrik ist renovierungsbedürftig; die Ausstattung der Küche ist renovierungsbedürftig.

Im EG und UG Böden gefliest, Laminat im DG.
Böden und Wände sind im Innenbereich und im Außenbereich teilweise mit hochwertigem Travertin-Naturstein belegt und verkleidet.

Fenster teilweise Kunststoff isolierverglast, teilweise Holz doppelverglast, Dachfenster Velux.

Das Dach besteht aus einer Holzzimmermanns-Konstruktion und ist mit Tondachziegeln, imprägnierten Dachlatten, Dachfolie atmungsaktiv und Wärmedämmung gedeckt (über die Art und Ausführung liegen keine Unterlagen vor), das Flachdach über dem Wohnzimmer ist undicht (Wasserschaden im Wohnzimmer). Die Dachrinnen und Verwahrungen bestehen aus Titanzink.

Terrassen-Überdachung PVC-Doppelstegplatten transparent. Die Terrasse an der Hausrückseite ist mit Natursteinen gefliest. Das Carport ist aus Holz mit Flachdach gebaut und ebenfalls renovierungsbedürftig.

Die Auffahrt und die Fläche im Hof sind gepflastert.

Angaben aus dem Baugesuch von 1963: Massivbauweise, Fundament und Umfassungswände UG aus Stampfbeton, Geschossdecken aus Stahlbeton, Außenwände aus Bimshohlblocksteinen, Treppe ins UG massiv, Treppen ins OG und zum Spitzboden aus Holz. Die Fassade ist zum Teil mit Naturstein verblendet, verputzt und gestrichen.

Das Haus ist in allen Gewerken renovierungsbedürftig.

Sonstige Angaben:

Eine Besichtigung ist nach Absprache in unserer Begleitung möglich.

Alle im Exposé enthaltenen Angaben beruhen auf Aussagen des/der Eigentümers/Eigentümerin. Unsere Angebote sind freibleibend und in diesem Falle nur für Sie bestimmt. Eine Weitergabe an Dritte bedarf unserer Zustimmung. Der Empfänger kann sich nur darauf berufen von einem Angebot bereits vorher Kenntnis gehabt zu haben, wenn er dies unverzüglich mitteilt.
Wenn der Empfänger unseres Angebotes unsere Dienstleistungen in Anspruch nimmt, ist er der Firma Mergenthaler Immobilien AG gegenüber provisionspflichtig. Die Käuferprovision beträgt 3,57% vom Verkaufspreis inklusive 19 % gesetzlicher MwSt. Irrtümer vorbehalten.

Jeder RE/MAX Lizenz- und Franchisenehmer ist ein rechtlich eigenständiges Unternehmen. Die Objektdaten wurden mit der erforderlichen Sorgfalt eingeholt und beruhen auf Angaben des Auftraggebers, für die wir keine Gewähr übernehmen.
Bernd Mergenthaler
Bernd Mergenthaler
REMAX in Waiblingen
+49 (0) 7151 966 58-0
Jeder Lizenznehmer ist ein rechtlich eigenständiges Unternehmen und handelt auf eigene Rechnung und Verantwortung.