Reference Detached house - Purchase - Korb

Freistehendes EFH mit südländischem Charakter

Korb
Type of property
House
Kind of property
Detached house
Type of commercialization
Purchase
Postcode
71404
City
Korb
Number of rooms
3
Number of bathrooms
1
Anzahl separates WC
1
Living area
124 sqm
Plot surface area
530 sqm
Heating type
Central heating system
vermarktungsstatus
Reference

Beschreibung:

Wohnen Sie und arbeiten Sie an einem Ort.
Die Lage im Gewerbegebiet in Korb bietet Ihnen eine komfortable Lösung für beides.

Das Einfamilienhaus ist mit rund 124 m² Wohnfläche geräumig und hätte das Potenzial aus drei Zimmer vier Zimmer zu machen, dazu kommt im Untergeschoß ein weiteres Zimmer, welches derzeit als Gästezimmer dient.
Die 8 m² große und in weiß gehaltene Küche mit Einbaugeräten bietet Ihnen viel Arbeitsfläche. Von hier aus können Sie Ihre Gäste auf südländischem Boden, kulinarisch verwöhnen.
Der angehauchte südländische Charakter des Hauses, gibt Ihnen vom ersten Moment an, ein Zuhause-Gefühl, so als wären Sie in Ihrem Urlaub angekommen. Die Atmosphäre durch die Weiträumigkeit im Wohn- und Esszimmer mit dem offenen Kamin garantiert Ihnen das Wohlfühlen auf höchstem Niveau. Die angrenzende überdachte Terrasse und der Richtung Süd-West ausgelegte Garten Zaubert Ihnen ein weiteres Urlaubsfeeling.
Ein Leben auf der Treppe suchen Sie hier vergeblich, denn das Schlafzimmer sowie das dritte Zimmer befinden sich auf der gleichen Ebene. Somit haben Sie ein Wohnungsflair im eigenen Haus mit großem Außenbereich.
Das dritte Zimmer könnte ohne größeren Aufwand geteilt werden.

Das Badezimmer, mit Tageslicht, überzeugt durch eine Badewanne und einer Dusche und ist in neutralem schwarz/weiß gehalten. Hier können Sie mit wenigen Accessoires eine wahre Wellness-Oase einrichten.

Der Dachboden lässt sich zwar nicht ausbauen, aber er bietet Ihnen
viel Platz, um all das zu verstauen, was Sie nur wenige Male im Jahr benötigen.

Ein Hauswirtschaftsraum, im Untergeschoss, weißt Ihnen den Platz für die Waschmaschine und den Trockner. Der Raum bietet Ihnen aber auch Platz für die Dinge, die Ihnen sonst im Weg stehen würden. Was Sie hier nicht verstauen können, bekommen Sie sicher im Flurbereich vor dem Gästezimmer unter. Hier finden Sie viele Möglichkeiten um Regale und Schränke aufzustellen, die nur noch gefüllt werden wollen.

Eine Anbaumöglichkeit für ein Büro, finden Sie im Bereich Ihres neuen Gartens oder im vorderen Bereich an der Straße.

Die große Garage bietet Ihrem Fahrzeug viel Schutz und Platz. Vor der Garage ist die Möglichkeit für weitere Fahrzeuge zu parken gegeben.

Seien Sie Gast bei sich selbst und genießen Sie ein Ambiente im Urlaubsmodus.

Lagebeschreibung:

Die Gemeinde Korb liegt eingebett zwischen den Korber "Köpfen", dem Korber Kopf, dem Hörnleskopf, dem Kleinheppacher Kopf und der Kreisstadt Waiblingen. Alle drei Köpfe sind mit Weinreben bewachsen und laden zu ausgiebigen Spaziergängen oder Fahrradtouren ein.
Die Gemeinde Korb hat derzeit ca. 10.900 Einwohner und bietet diesen ein vielfältiges Freizeit- und Vereinsleben an.

Korb bietet seinen Einwohnern zudem alle Läden des täglichen Bedarfs sowie auch mehrere Apotheken und Ärzte.

Die Anbindung ist durch die nahegelegene B 14 und die B 29 gewährleistet. Über die Busanbindung nach Waiblingen ist auch der Anschluss an das Netz des Verkehrsverbunds Stuttgart (VVS) gegeben.

Ausstattung:

Energieausweis:

  • A+
  • A
  • B
  • C
  • D
  • E
  • F
  • G
  • H
0
30
50
75
100
130
160
200
250
>250
Baujahr (Haus):
1986
Final energy demand:
202,3 kWh/(m²a)
Energy certificate:
Requirement-oriented certificate
Energy efficiency class:
G
Energy certificate valid until:
24.03.2031
Main energy source:
Oil
Heating type:
Central heating system
Baujahr (Haus) Energieausweis:
1986

Ausstattungsbeschreibung:

ERDGESCHOSS:
Diele, Küche mit Einbauküche, separates WC mit Fenster, geräumiges Kinderzimmer, Wohn-/Essbereich mit offenem Kamin, Tageslichtbad mit Dusche sowie Badewanne und Waschbecken, Schlafzimmer, überdachte Terrasse, Garten

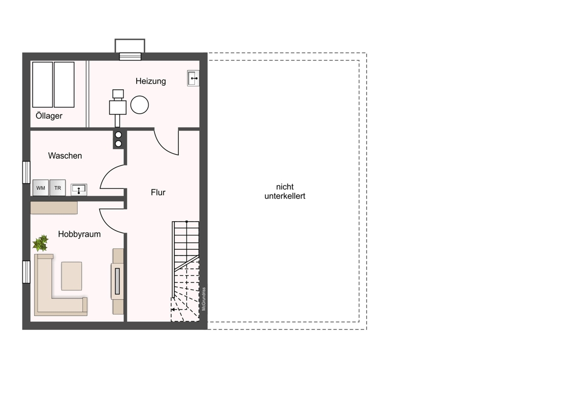
UNTERGESCHOSS:
geräumiger Flur welcher auch als Hobbybereich genutzt werden kann, Wohnraumartig ausgebauter Hobbyraum, welcher derzeit als Gästezimmer genutzt wird, die Waschküche und den Heizraum

Das Untergeschoss des Hauses wurde in Massivbauweise errichtet und ist ab dem Erdgeschoss in Fertigbauweise gebaut.

Das Haus wurde im Jahr 2010 im Erd- und Untergeschoss renoviert. Die Renovierung bezog sich auf:
Die Böden, die Wände, die Sanitärbereiche und die Küche.

Das Haus wird nach dem Verkauf frei.

BA, 202,30 kWh/(m²*a), Öl, ZH,
Bj. 1986, G, gültig bis 24.03.2031, Baujahr Wärmeerzeuger 1986

Sonstige Angaben:

Eine Besichtigung ist nach Absprache in unserer Begleitung möglich. Alle genannten Angaben zum Objekt beruhen auf den Angaben des Eigentümers, für deren Richtigkeit wir keine Gewähr übernehmen können. Bei Abschluss eines Kaufvertrags wird eine Provision in Höhe von 3,57 % inkl. 19 % gesetzlicher MwSt. an uns fällig.
Jeder Lizenznehmer ist ein rechtlich eigenständiges Unternehmen und handelt auf eigene Rechnung und Verantwortung.